Every home tells a story… This well kept and well loved home in gated community has everything you need to make lifetime memories. Combining timeless craftsmanship and thoughtful modern updates, this home offers comfort and convenience.
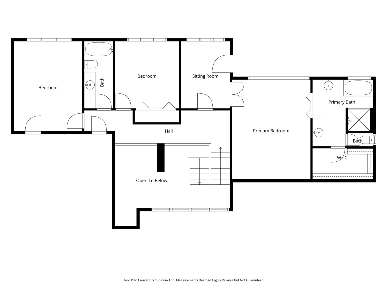
A welcoming foyer leads to a formal living room with gas fireplace and formal dining room, perfect for entertaining. The cozy den features a 2nd gas fireplace. Spacious kitchen is fully equipped and has a light filled breakfast area. A versatile flex space is suitable for a home office, gym or playroom. The upper level features the primary bedroom with a separate sitting area, both overlooking gorgeous lagoon views. The ensuite bathroom has his/her vanities, tub, separate shower and walk0in closet. Large secondary bedrooms. Sprinkler system with its own well!
Relax in the back yard that offers quiet reflection, privacy and unparalleled water views.
Enjoy a pool, playground, tennis and dock in this gated, amenity enriched community.
 
             
               
               
               
               
               
               
               
               
               
               
               
               
               
               
               
               
               
               
               
               
               
               
               
               
               
               
               
               
               
               
               
               
               
               
               
               
               
               
               
               
               
               
               
               
               
               
               
               
               
               
               
               
               
               
               
               
               
               
               
               
               
               
               
               
               
               
               
               
               
               
               
               
               
               
               
             
             
             
             
             
             
             
             
             
             
             
             
             
             
             
             
             
             
             
             
             
             
             
             
             
             
             
             
             
             
             
             
             
             
             
             
             
             
             
             
             
             
             
             
             
             
             
             
             
             
             
             
             
             
             
             
             
             
             
             
             
             
             
             
             
             
             
             
             
             
             
             
             
            